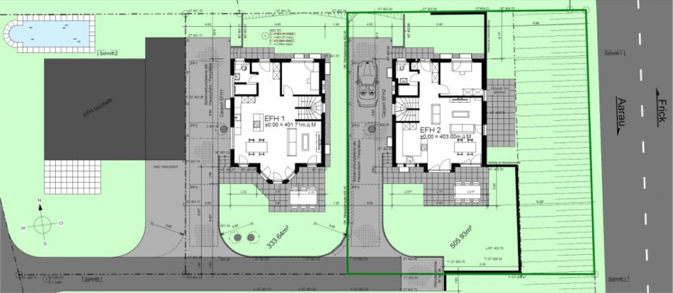
Ueken bei Frick Haus 2


Eckdaten

  VERKAUFT
Adresse: Obermattweg, 5028 Ueken
Anzahl Zimmer: 5 ½ - 6 ½
Grundstückfläche: 506 m2
Verfügbar: 2021 / nach Vereinbarung
   



Zusätzliche Informationen

Neu zu erstellendes, freistehendes 5 ½- bis 6 ½- Zimmer EFH mit Erker.

Hoher Ausbaustandard. 2 Nasszellen. Bad mit Whirpool. Sämtliche Bodenbeläge mit keramischen Platten oder Eichenlaminat. Offene Küche mit Kochinsel. Beste Energiewerte.

Im Preis inbegriffen sind ein Carport und ein Parkplatz.

Der Innenausbau kann grösstenteils vom Käufer bestimmt werden (Küche, Bad, Stuckatur etc.). Auch Einteilung der Zimmergrössen ist möglich.

Baustart 2020.

Die Angaben dieser Dokumentation dienen zur Information und bilden nicht Bestandteil einer vertraglichen Vereinbarung.












© Casalit AG - Immobilien - Betreuung - FinanzierungenHome | Impressum | Datenschutz | Kontakt

empty